Расчёт лестницы

Модульная малогабаритная лестница Эксклюзив 2025-2250, Белый, Сосна, Нержавеющая сталь



Код товара: 36807

Доставка в Бийск: от 3-х дней

Условия доставки

48 720

+

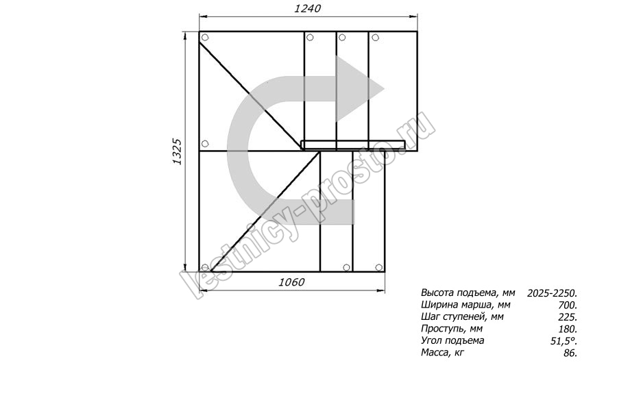
Характеристики:

Высота лестницы 2025 - 2250 мм

Высота шага 225 мм

Ширина марша 700 мм

Вес 86 кг

Высота, мм 2025-2250

Описание:

Малогабаритная модульная лестница состоит из множества идентичных деталей, называемых модулями. Она представляет собой удобную, практичную, современную конструкцию, которая удачно дополнит любой интерьер. Дополнительное преимущество модульных лестниц – возможность установки в практически любом помещении. Отличительная особенность – оригинальный дизайн. Компания "Лестницы-просто.ру" имеет патент на изготовление лестниц с квадратным профилем. Только у нас Вы сможете приобрести лестницу данной конструкции.

Упаковка:

Покраска

от 25 800

Любой цвет, подбор по образцу. Надёжные средства. Качественное нанесение

подробнее
Стоимость монтажа

Монтаж:

от 21 900

Качественный монтаж опытными специалистами с учётом всех нюансов

Подробнее

Покраска деревянных элементов лестницы

от 25 800

Вы можете заказать у нас профессиональную покраску деревянных элементов лестницы.
Ниже представлена палитра наиболее популярных расцветок. Выкрасы выполнены на сосне.
На образцы нанесен 1 слой краски и 2 слоя воска.
Обратите внимание! Оттенок на экране может отличаться от ожидаемого, мы настоятельно рекомендуем посетить наш шоу-рум для ознакомления с образцами выкрасов.
Всю доступную палитру на разных породах дерева можно посмотреть, перейдя по этой ссылке

8510 Белый

8535 Сталь

8532 Орех

8533 Дуб копчёный

8539 Коричневый

8542 Тик тёмный

8543 Мербау

8544 Дуб бразильский

8546 Венге

8548 Дуб натуральный

Шоколад (Лайнос)

8536 Каппучино

8543 Сахара

Любой ваш цвет

Монтаж лестницы

Наша компания осуществляет профессиональный монтаж лестниц любого вида сложности. В нашем портфолио более 300 благополучно установленных интерьерных и наружных лестниц.

Монтаж за 1-2 дня

Бережная точная сборка лестницы

Увезём за собой мусор

Вернём оплату замера при монтаже нашей лестницы

от 21 900

Указана цена исключительно на монтаж лестницы, любые дополнительные работы, связанные с несовершенством стен, углов, устранением дополнительных препятствий при установке лестницы - изменят стоимость работ.
Так же, на стоимость влияет удалённость объекта. Точную стоимость установки лестницы мы можем объявить только после осмотра помещения специалистом и совершения необходимых замеров.

Ранее вы смотрели